1 / 20
Listed by: Andrea Kavanagh PREC* | RE/MAX Select Properties
Sold
Sold price available after login
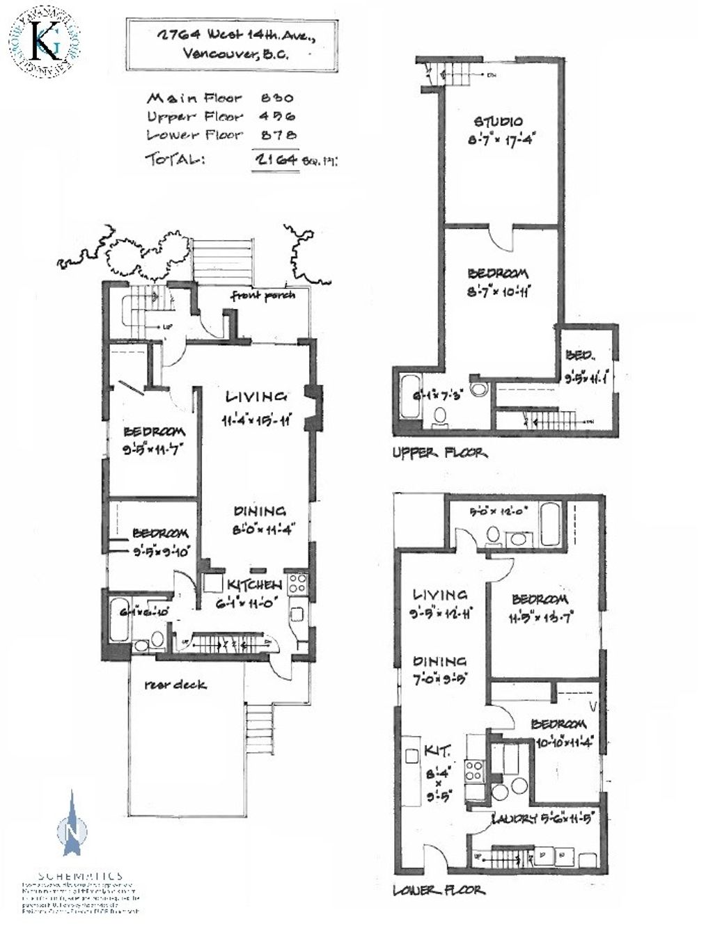
2764 W 14th Avenue, Vancouver BC
6beds
3baths
2,164sq ft
Available after login/sq ft
Days on rennie available after loginCumulative days on market available after login
R2290093MLS ®
Why buy a new house when you can save money by building your own. Priced over $400k below BC Assessed Value. Live in, hold, or build your dream home on this level 33' x 122' private lot on a pretty tree-lined street in Kitsilano. Sunny South facing backyard with laneway potential. RS-5 zoning with lane. This over 2100 sq ft, 6 bedroom, 3 bath home with basement suite is a great potential income generator. A short stroll to Starbucks, beaches, parks, shops & restaurants. Easy access to transit and great schools such as Bayview Elementary, Kits Secondary, West Point Grey Academy, OLPH, & UBC.
property details
HouseProperty type | |||
3,920.4 ft²Lot area SF | |||
$7,990Taxes 2017 | |||
TwoFloor levels | |||
33.00 ftFrontage | |||
2,164 ft²Living area | |||
PrivateFeatures included | |||
Garden, Private YardAmenities | |||
| Subarea | Kitsilano | ||
| Listed by | RE/MAX Select Properties | ||
| rennie last checked | February 04, 2026 at 07:47am | ||
| Last updated | February 13, 2025 at 08:51pm | ||
| Cumulative days on market | 143 days | ||
| Closed Date | September 05, 2018 | ||
| Source | VancouverBC |




















