1 / 2
Listed by: Harpreet Mann - PREC | Sutton Group-West Coast Realty (Abbotsford)
Sold
Sold price available after login
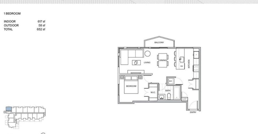
301 - 32838 Landeau Place, Abbotsford BC
1bed
1bath
607sq ft
Available after login/sq ft
Days on rennie available after loginCumulative days on market available after login
R2634279MLS ®
This is a Brand New never lived in spacious 1 bedroom corner unit with North and East exposure Comes with 2 Parking Spots and a Storage Locker! The building also has an electric car charge station. The kitchen features stainless steel appliances, polished quartz counter tops and sleek soft close kitchen cabinets. In unit washer/dryer. Pets with restrictions & Rentals Allowed!! Short walk to Seven Oaks Shopping Centre, Superstore and Mill Lake Park.
property details
CondoProperty type | |||
$1,975Taxes 2021 | |||
OneFloor levels | |||
0 ftFrontage | |||
$189 / monthMaintenance fee | |||
607 ft²Living area | |||
Cul-De-SacFeatures included | |||
Garden, Balcony, ElevatorAmenities | |||
Trash, Maintenance Grounds, Hot Water, Management, Snow RemovalSite influences | |||
| Subarea | The Court | ||
| Listed by | Sutton Group-West Coast Realty (Abbotsford) | ||
| rennie last checked | September 18, 2025 at 12:08pm | ||
| Last updated | February 14, 2025 at 07:49pm | ||
| Cumulative days on market | 21 days | ||
| Closed Date | February 28, 2022 | ||
| Source | VancouverBC |


