1 / 28
Listed by: Shelly Vellani PREC* | Rennie & Associates Realty Ltd.
New listing
Active
$449,000
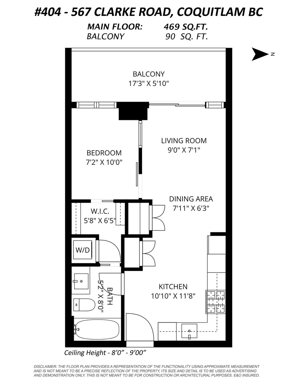
404 - 567 Clarke Road, Coquitlam BC
1bed
1bath
469sq ft
$957/sq ft
7 days on rennie117 cumulative days on market
R3093092MLS ®
567 Clarke + Como, Coquitlam's tallest & most coveted luxury tower! The most desirable 1 bedroom floorplan spanning over 550 sq/ft of indoor/outdoor living. Enjoy an open & efficient space with/ the quietest exposure, spa-like bath, gourmet kitchen & large balcony perfect for morning coffees, BBQs & entertaining. Appointed with AC, floor-to-ceiling windows allowing an abundance of natural light & stunning views from every room! Includes: PARKING + STORAGE! 3 Levels of World Class Amenities: Basketball Courts, Gym, Guest Suites, Sky Lounge & Concierge. With proximity to skytrain, shopping & dining, an effortless lifestyle awaits! MUST SEE VIRTUAL TOUR!
property details
CondoProperty type | |||
$1,644Taxes 2025 | |||
OneFloor levels | |||
$285 / monthMaintenance fee | |||
469 ft²Living area | |||
Balcony, StorageAmenities | |||
Clubhouse, Recreation Facilities, Concierge, Trash, Maintenance Grounds, Gas, Hot Water, Management, Snow Removal, Fitness CenterSite influences | |||
| Subarea | Clarke +como | ||
| Listed by | Rennie & Associates Realty Ltd. | ||
| rennie last checked | March 04, 2026 at 02:46am | ||
| Last updated | March 03, 2026 at 06:12pm | ||
| Cumulative days on market | 117 days | ||
| Source | VancouverBC |




























