1 / 5
Listed by: Sarah L. Guo PREC* | RE/MAX Crest Realty
Sold
Sold price available after login
943 Dansey Avenue, Coquitlam BC
350,613,120sq ft
Available after login/sq ft
Days on rennie available after loginCumulative days on market available after login
R3055990MLS ®
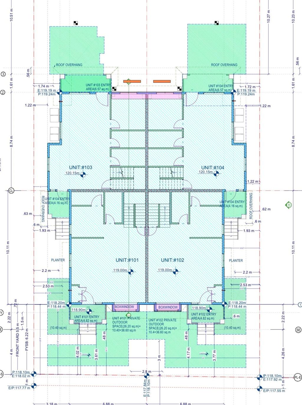
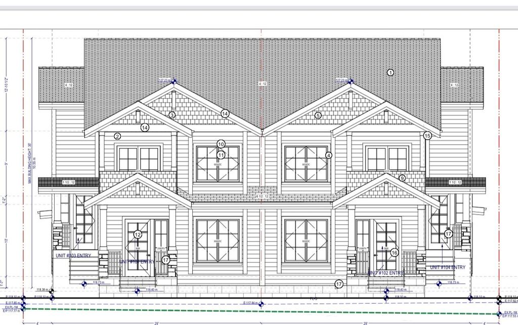
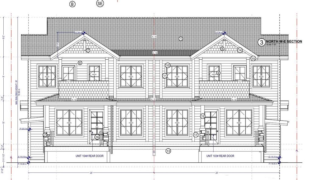
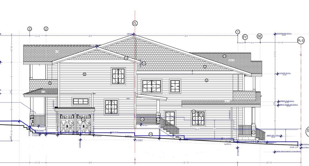
Central Location with this 4 plex BP Approved and Whole Design Package for this 8048 sq. lot. Approved FSR is 75%=6037.8 sq.f; 2 storeys, 8 parking spaces; Heating will be in slab radiant water heating supplied by boiler. Unit 101 =1482.4; unit 102=1482 sq,f on the Dansey Ave, unit 3=1496 sq.f; unit 4=1496 sq,f on each side. $280K fee and cost have been paid/included. Ready to built for your dream houses/ or money making project!
property details
LandProperty type | |||
350,613,120 ft²Lot area SF | |||
$6,888Taxes 2024 | |||
66.00 ftFrontage | |||
| Subarea | Central Coquitlam | ||
| Listed by | RE/MAX Crest Realty | ||
| rennie last checked | February 04, 2026 at 09:15am | ||
| Last updated | November 14, 2025 at 02:06am | ||
| Cumulative days on market | 12 days | ||
| Closed Date | November 13, 2025 | ||
| Source | VancouverBC |





