315 - 2490 Marine Drive, West Vancouver BC
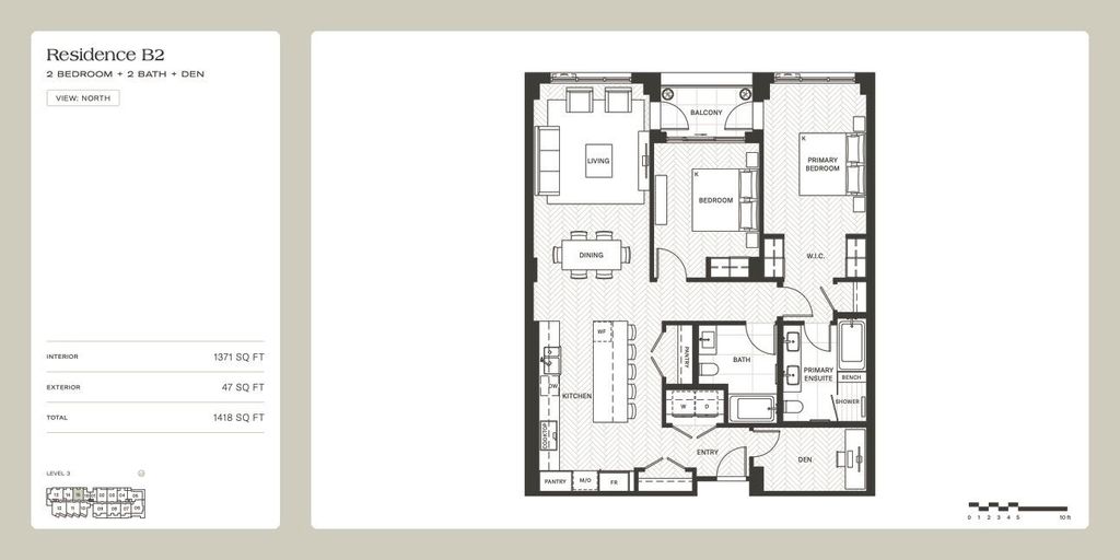
Welcome to Pierwell, a limited collection of 36 oceanside residences in Dundarave Village. This 2-bed and den home features 9'4 ceilings and spectacular Mountain views. Crafted by Arcadis IBI group, Pierwell features thoughtful layouts, generous outdoor spaces, striking architecture and concrete construction. Interiors by award-winning Cristina Oberti design, Italian-made cabinetry by Stosa Cucine & Inform, Intek closet systems, state-of-the art Gaggenau 400 series appliance package, Sub-Zero wine fridge, herringbone oak hardwood flooring, and air conditioning for year round comfort. Residents will enjoy exclusive access to the 2-level gym, yoga space, and 6-person sauna. Enjoy peace of mind with a 2-5-10 New Home Warranty. Sales Gallery Open Daily 12-5PM EXCEPT Fridays
property details
CondoProperty type | |||
$0Taxes 2027 | |||
OneFloor levels | |||
$740 / monthMaintenance fee | |||
1,371 ft²Living area | |||
Balcony, Elevator, StorageAmenities | |||
Trash, Maintenance Grounds, Management, Recreation Facilities, Snow Removal, Water, Fitness CenterSite influences | |||
| Subarea | Pierwell | ||
| Listed by | Rennie & Associates Realty Ltd. | ||
| rennie last checked | December 16, 2025 at 09:27am | ||
| Last updated | October 28, 2025 at 03:51pm | ||
| Cumulative days on market | 55 days | ||
| Source | VancouverBC |












