1 / 4
Listed by: Tugo Rados | Pemberton Holmes Ltd.
Sold
Sold price available after login
4292 Glanford Ave, Saanich BC
5beds
3baths
2,475sq ft
Available after login/sq ft
Days on rennie available after loginCumulative days on market available after login
721360MLS ®
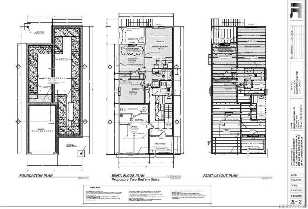
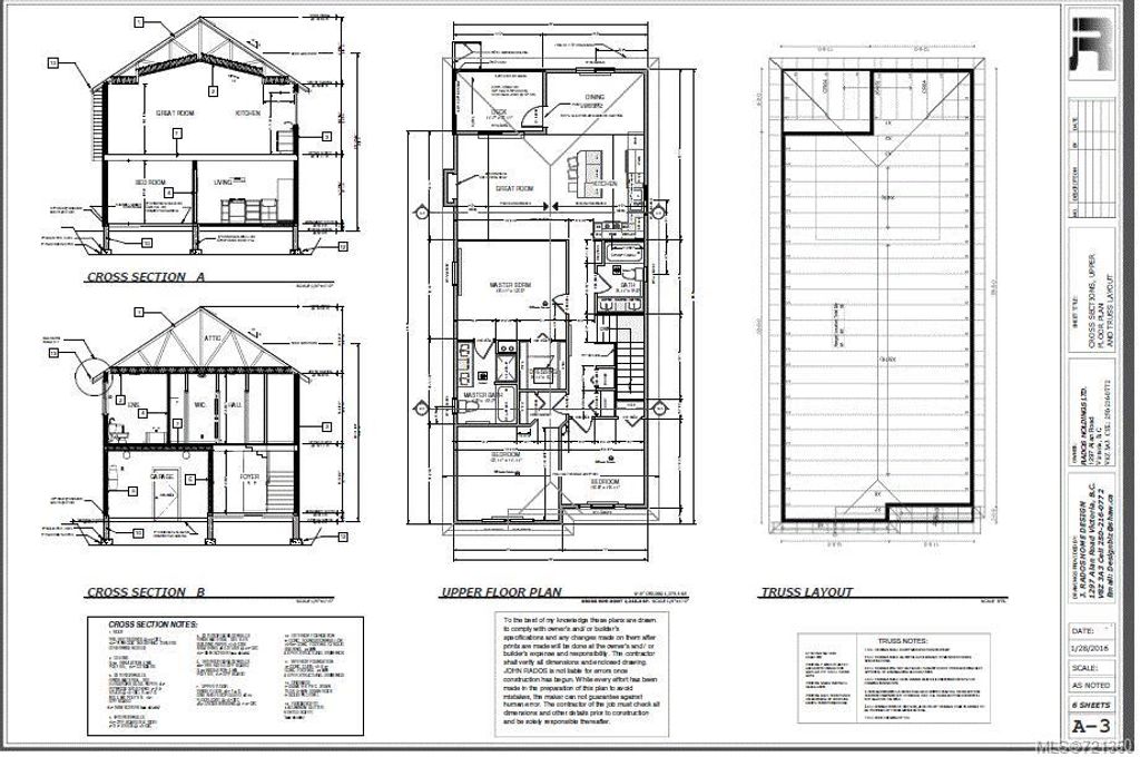
In for permit, breaking ground in March 2016. New 5 bdrm, 3.5 bath home (includes a 2bd 1bth suite) with open concept and gourmet kitchen. Centrally located close to all amenities. High end appliances (stove, fridge, dishwasher), spacious eating area with access to a covered patio and an open great room. Master bedroom with walk in closet and an exceptional master bath. Completion expected end of Aug 2016.
property details
HouseProperty type | |||
6,098 ft²Lot area SF | |||
$1,800Taxes 2015 | |||
2,475 ft²Living area | |||
Irregular LotFeatures included | |||
| Area | Saanich West | ||
| Listed by | Pemberton Holmes Ltd. | ||
| rennie last checked | February 04, 2026 at 07:52am | ||
| Last updated | May 14, 2024 at 03:18pm | ||
| Closed Date | September 30, 2016 | ||
| Source | VictoriaBC |




