1 / 28
Listed by: Michael McKillican | Sutton Group-West Coast Realty (Nan)
Sold
Sold price available after login
5795 Linley Valley Dr, Nanaimo BC
5beds
5baths
3,587sq ft
Available after login/sq ft
Days on rennie available after loginCumulative days on market available after login
806038MLS ®
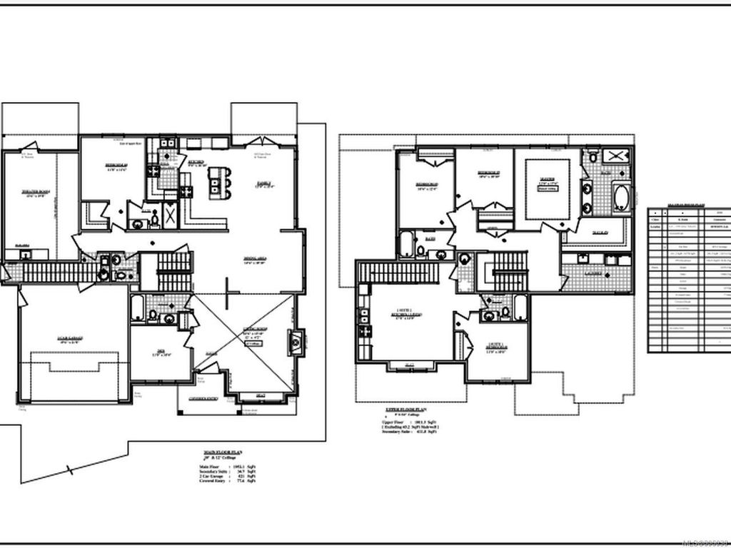
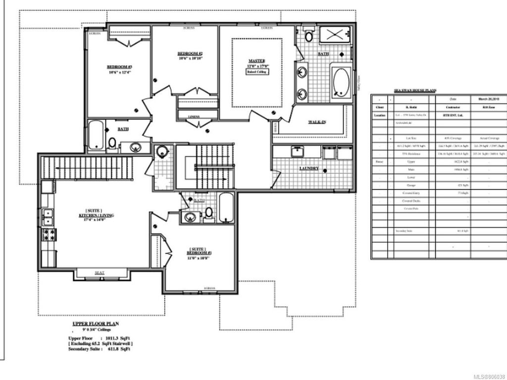
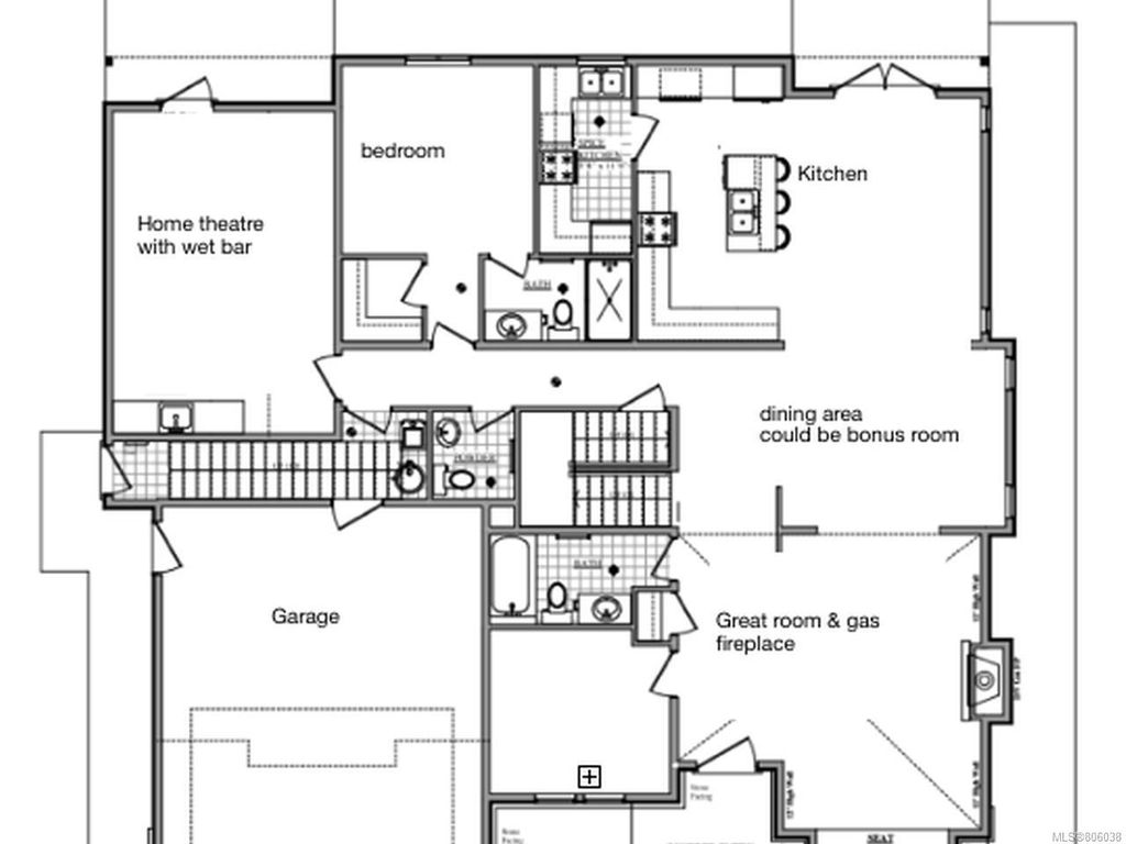
Dreamhome for sale in Linley Valley. Large custom front door, vaulted ceilings extensive wood work throughout. The home has a traditional feel, front room with gas fireplace, den off the entrance, formal dining area with country kitchen. bedroom and full bathroom, modern home theatre with wet bar and custom cabinetry & pre wired. On the upper floor continues to impress. Huge master bedroom with ensuite & walk-in closet. Plus two additional bedrooms with full bathroom. Separate entrance leads to an amazing one bedroom legal suite. Bedroom, full bathroom, beautiful kitchen and sitting area, laundry.
property details
HouseProperty type | |||
6,534 ft²Lot area SF | |||
$21,455Taxes 2019 | |||
3,587 ft²Living area | |||
Mountain(s)Views | |||
GardenAmenities | |||
| Area | Nanaimo | ||
| Listed by | Sutton Group-West Coast Realty (Nan) | ||
| rennie last checked | February 04, 2026 at 08:03am | ||
| Last updated | May 14, 2024 at 03:38pm | ||
| Closed Date | May 31, 2019 | ||
| Source | VictoriaBC |




























