1 / 20
Listed by: Lisa Borsato | RE/MAX All Points Realty
Sold
Sold price available after login
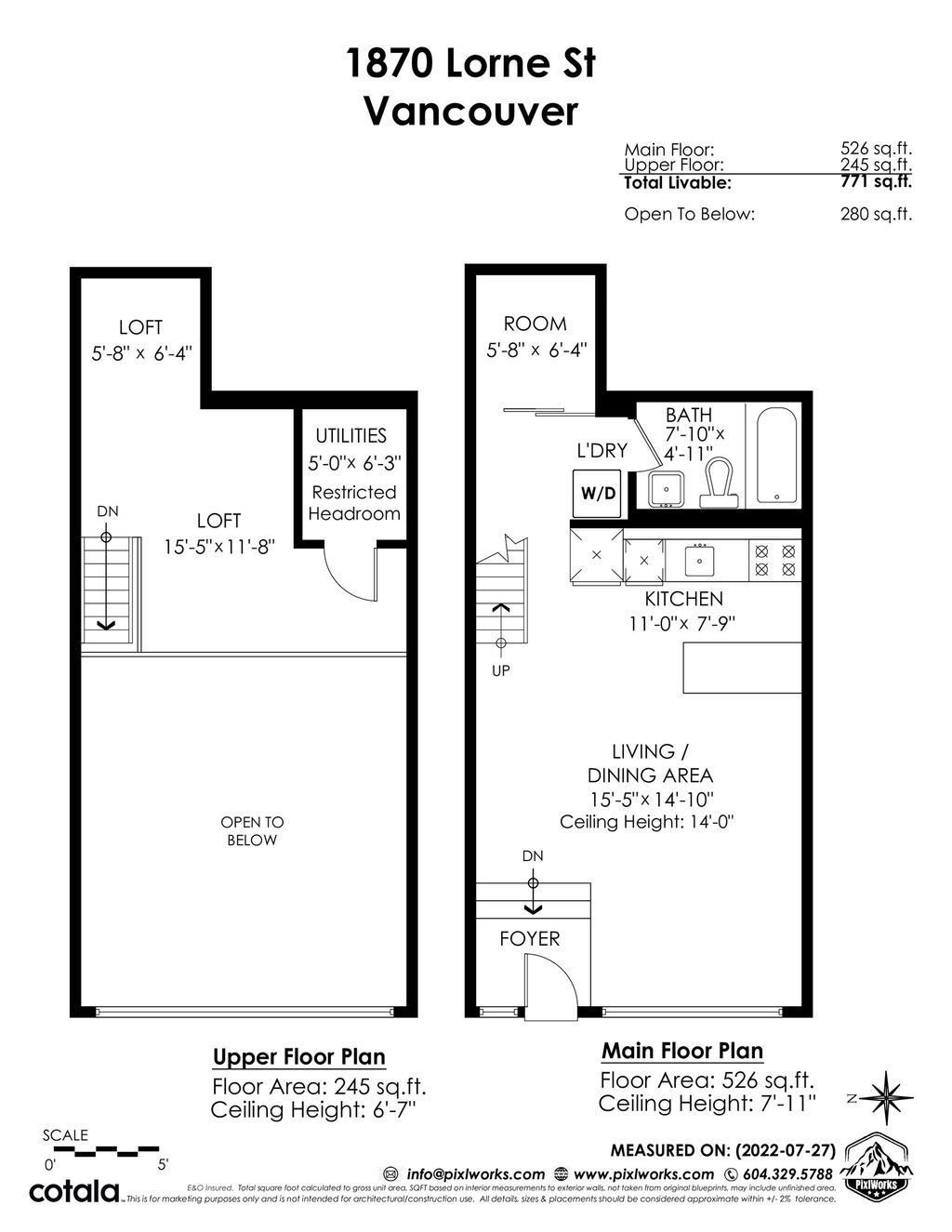
1870 Lorne Street, Vancouver BC
-beds
1bath
771sq ft
Available after login/sq ft
Days on rennie available after loginCumulative days on market available after login
R2713511MLS ®
LOCATION LOCATION! LOFT LIVING IN THE TRENDY MOUNT PLEASANT AREA. Da Vinci boutique building which allows for light industrial, live arts and residential uses. Featuring 14 ft height ceiling, floor to ceiling windows with tons of natural light. 771 sq ft Live/work loft boasts open concept living. Spacious galley kitchen with additional den on the main floor. Features large loft bedroom up stairs. Steps to neighbourhood bars, restaurants, breweries, cafes, vintage shops, boutiques and much more! Efficient self-managed strata with only 20 units. Bonus in-suite laundry. Pets and rentals allowed. Book your private showing today!
property details
CondoProperty type | |||
Live/Work Studio, Loft/Warehouse Conv.Style of home | |||
$1,556Taxes 2022 | |||
$200 / monthMaintenance fee | |||
771 ft²Living area | |||
TrashSite influences | |||
| Subarea | Da Vinci | ||
| Listed by | RE/MAX All Points Realty | ||
| rennie last checked | February 04, 2026 at 08:39am | ||
| Last updated | February 26, 2025 at 02:31pm | ||
| Cumulative days on market | 5 days | ||
| Closed Date | November 01, 2022 | ||
| Source | VancouverBC |




















