1143 McKenzie Dr, Duncan BC
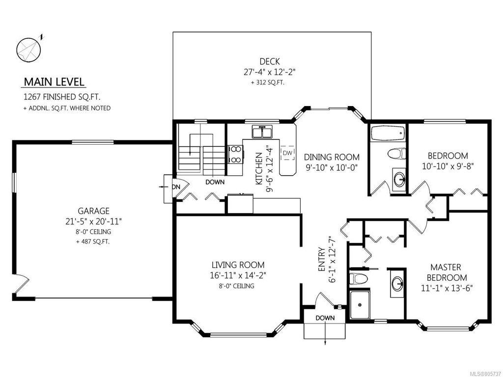
Lake View Estates Classic! Lovely main level entry home with a fully finished walk out basement. This home has seen numerous updates including main level hardwood flooring, vinyl plank flooring down, all vinyl windows, kitchen counter tops, and new decking. The bright entry leads to the spacious living area with large bay window. Oak kitchen and adjacent dining area with access to 312 square foot deck with awesome mountain views. There are two main floor bedrooms including the large master with double closets and full ensuite with heated tile floors. Also on the main an updated bath and access to the double garage. Two more bedrooms down, full bath, huge family area, laundry, and office/storage room. Half acre property with driveway access to the rear yard, garden shed, sprinkler system, and terraced landscaping. Located close to marinas and world class hiking and biking. Just move in and enjoy!
property details
HouseProperty type | |||
22,216 ft²Lot area SF | |||
$3,835Taxes 2018 | |||
2,500 ft²Living area | |||
Mountain(s)Views | |||
| Area | Duncan | ||
| Subarea | Lakeview Estates | ||
| Listed by | RE/MAX Island Properties (DU) | ||
| rennie last checked | February 04, 2026 at 07:33am | ||
| Last updated | May 14, 2024 at 03:38pm | ||
| Closed Date | April 01, 2019 | ||
| Source | VictoriaBC |































